Direccion

Juan Piñeiro 295 - Lanús Oeste

Telefono

(011) 4241-3640

Volver

Volver al listado

Oportunidad

DEPARTAMENTO 2 AMBIENTES A ESTRENAR CON COCHERA

direccion Doctor Melo 2654, Lanús Oeste destacada Propiedad destacada

Venta

USD 115.000

Características
tipo Departamentos
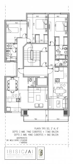
ambiente 2 ambientes
dormitorio 1 dormitorio
suite 1 dormitorio en suite
baños 1 baño
toilet 1 toilette
patio Sin patio
jardin Sin jardín
cochera 1 cochera
superficie Sup. cubierta 49m2
superficie Sup. total 55m2
superficie 11 pisos
disposicion Disposición Frente
antiguedad Antigüedad: A estrenar
situacion Estado: Excelente
codigo Código AAA711
Acerca de la propiedad

DR. MERLO 2654, LANÚS OESTE.

Unidades exclusivas de 2, 3 y 4 ambientes. Detalles de categoría. Balcones aterrazados con espacio para parrilla. Departamentos con caldera dual. Dormitorios en suite. Sum y amenities en 1° piso. Cochera en planta baja y subsuelo

Living comedor con salida al balcón aterrazado a la calle  * Cocina * Dormitorio en suite con baño * Toilette * 

Las superficies son aproximadas para fines informativos, ya que las definitivas resultaran del título de propiedad y/o planos correspondientes.

Lanús Oeste, Buenos Aires, Argentina.
+54(011)4241-3640 / 4241-4241
#vecchipropiedades
@vecchipropiedades

 

Ubicación
Consultar por propiedad
Departamento 2 Ambientes A Estrenar Con Cochera
Venta
USD 115.000

Comunicate con nosotros

error

error

error

error


Propiedades relacionadas
contacto No dudes en contactarte con nosotros contacto
telefono LLAMAR
Comunicate con nosotros

error

error

error

error